Hausbautagebuch
Chaos besiegt, Netzwerk erobert: Wie wir den Hausanschlusskasten zähmten
lange war es ruhig um unser Hausbauabenteuer, aber heute war...
Ein Sonnenstrahl im Dachgeschoss: Solar-Rollos für die Rettung!
Es ist etwas stiller geworden, weil sich keine riesen Schritte...
Ein Blick in unseren Flur: Von Hausbauchaoten und kleinen Erfolgen
Hallo liebe Hausbauchaoten und alle, die es noch werden wollen!...
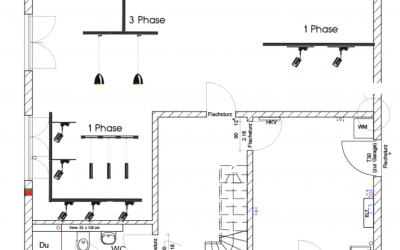
Licht an! Ein Hausbautagebuch voller Lampen-Lacher
Heute möchte ich mit euch über ein Phänomen sprechen, das wohl...
Unsere Küche ist das Herzstück – Jetzt mit Leben gefüllt!
Wir können es selbst kaum glauben, aber es ist tatsächlich...
Der Tag der Tage: Die Schlüsselübergabe und Abnahme
Yeaaaaaaaaaah Baby! Heute ist der Tag, auf den wir so lange...
Kommando Briefkasten und Paketbox gestartet
Heute ging es weiter Richtung Einzug im Hausbau – nicht nur...
Die Herzstücke unseres Zuhauses sind da – Unsere Küche ist eingetroffen!
Ein aufregender Tag in unserem Hausbauprojekt - heute wurde...
Erfolgreicher Blower Door Test – Ein wichtiger Schritt in Richtung Hausübergabe
Der lang ersehnte Blower Door Test wurde endlich durchgeführt....
Zwischenbaustelle und Provisorien: Auf dem Weg zum endgültigen Einzug
Es ist so weit - unser Haus erstrahlt im "fertigen" Glanz, die...
Der Hausbau – 12 Monate in 2 Minuten
Es ist Zeit für ein Update aus unserem ganz persönlichen...
Bodenverlegung im Schlafwandel-Modus
Endlich war der Zeitpunkt gekommen, in dem wir selbst Hand...
Kontakt
0216109909730
wir@hausbauchaoten.de
Bauprojekt
Viersen, am schönen Niederrhein











